Micro apartamentos
Grandes soluções para pequenos espaços
Para colmatar a falta de espaço nos grandes centros urbanos, cada vez mais densificados, iniciou-se uma enorme procura de pequenos apartamentos, que numa área reduzida consigam optimizar o espaço de forma a responder às necessidades do quotidiano.
Subdividir um espaço reduzido entre as áreas funcionais mínimas de habitabilidade passa por procurar estratégias de organização criativas de acordo com a área e volume disponíveis.
Hoje em dia, encontramos soluções bastante interessantes resolvidas em altura, segundo patamares, ou num mesmo piso, através de paredes/armários que se movem e transformam o espaço.
É importante perceber que as tendências actuais levam a população a centrar-se nas grandes cidades, procurando um tipo de conforto que valoriza a proximidade das deslocações e procura de espaços práticos e funcionais em detrimento de grandes áreas com luxos dos quais as suas vidas já não permitem tirar partido.
O luxo pode ser agora conseguido num micro apartamento no seio de um centro urbano!
Refugio urbano - 21m² (Madrid, Espanha - 2012) by MYCC
Este refúgio ocupa uma área de 21.00m² e um volume de 100.00m³. Organiza-se segundo uma faixa longitudinal, em que a altura é utilizada para distribuir as várias valências, todas elas visualmente conectadas entre si. Subir à cozinha ou descer ao quarto proporciona a sensação de mudança e uma percepção diferente de lugar, distinguindo bem as várias dependências.

Refugio urbano - 21m² (Madrid, Espanha - 2012) / MYCC via archdaily.mx
Micro apartamento - 29m² (Wroclaw, Polónia - 2013) / 3XA
O objectivo da arquitecta foi maximizar uma área de apenas 29.00m², criando uma zona de dormir independente. Numa altura de 3.7m conseguiram encaixar um segundo piso sobre a zona de entrada e instalação sanitária, com a função de quarto.
O budget utilizado nesta casa também foi controlado, recorrendo a acabamentos básicos e modestos.



Micro apartamento - 29m² (Wroclaw, Polónia - 2013) / 3XA via architizer.com
Apartamento Espectral - 20m² (Paris, França - 2013) / Betillon/Dorval-Bory
Este pequeno apartamento concentrava duas dificuldades: a de organizar uma habitação numa área tão reduzida e resolver as questões de iluminação, inerentes à fraca presença de luz natural. Para contornar o problema da falta de espaço, foi criado um segundo piso com uma cama sobre a zona de duche e lavatório, tirando partido do volume em altura. Também foi realizado um exaustivo estudo de iluminação artificial para que o espaço se torne vivencialmente mais aprazível e confortável.


Apartamento Espectral - 20m² (Paris, França - 2013) / Betillon/Dorval-Bory via domusxl.com
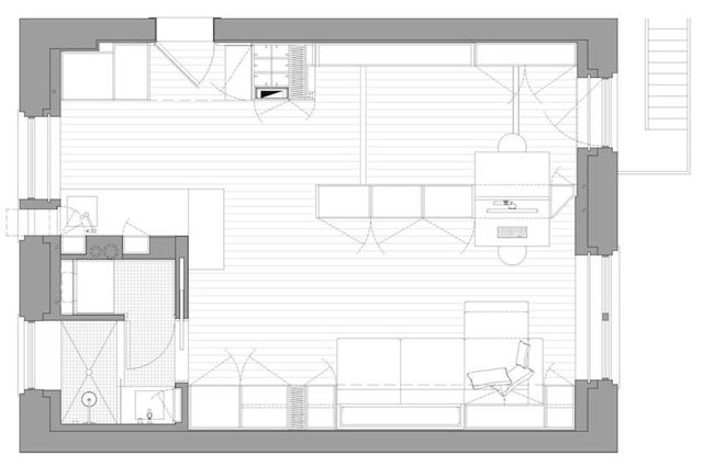
Apartamento num sótão - 57, 60m² (Madrid, Espanha - 2013) / Elii architects
Adaptado ao estilo de vida contemporâneo, este apartamento permite que o morador adapte os espaços às suas necessidades com simples movimentos: um puxão, um empurrão, um click…
Para optimizar o espaço, libertando área de estar no piso 0, foi criada uma mezzanine com a função de quarto e zona de banho com núcleo de escadas de acesso. A mezzanine é aberta, permitindo a incidência de luz natural no piso inferior. Foram criadas paredes deslizantes semitransparentes por forma a subdividir o espaço em áreas menores de acordo com as necessidades funcionais.


Apartamento num sótão - 57, 60m² (Madrid, Espanha - 2013) / Elii architects via dezeen.com
Cityhome - 18,50m² (Massachusetts, E.U.A. - 2014) / MIT Media Lab’s Changing Places
City home desenvolve-se em torno de um módulo central que dispõe de: cama, mesa de jantar, secretária, cozinha e arrumos. O módulo contém vários sensores que reagem aos movimentos do corpo e à voz, adaptando-se criando diferentes espaços funcionais de acordo com as necessidades. O seu valor torna-se bastante acessível quando comparado com a aquisição do mobiliário diferenciado adequado a todas as funções.

Cityhome - 18,50m² (Massachusetts, E.U.A. - 2014) / MIT Media Lab’s Changing Places via idesignarch.com
Barcode Room - 20m² (Tóquio, Japão - 2012) / studio_01
O Barcode room tem o objectivo de maximizar o espaço dos micro apartamentos citadinos em que cada vez mais somos impulsionados a viver. O conceito baseia-se em 3 paredes deslizantes que podem ser movidas formando múltiplas combinações. Existem 12 tipos distintos de paredes que dispõem de compartimentos referentes aos diferentes tipos de mobiliário, como cozinha, cama, mesa de refeições… As paredes podem ser aplicadas em qualquer tipo de apartamento, pois funcionam através de uma calha presa ao tecto que as faz deslizar e subdividir o espaço.


Barcode Room - 20m² (Tóquio, Japão - 2012) / studio_01 via blog.studiozeroichi.com
Manhattan Micro Loft - 40m² (Manhattan, E.U.A. - 2011) / Specht Harpman Architects
Com apenas 40m², o apartamento desenvolve-se em altura segundo várias plataformas funcionais. A casa de banho ocupa o nível mais baixo sob a escada, seguindo-se a plataforma da cozinha, aberta para a sala de estar que se situa uns degraus acima. Subindo um lance de escadas temos a zona de dormir que dispõe de mais um lance de escadas com acesso ao jardim.


Manhattan Micro Loft - 40m² (Manhattan, E.U.A. - 2011) / Specht Harpman Architects via spechtharpman.com
Life edited apartment - 39m² (Nova Iorque, E.U.A. - 2013) / Graham Hill
É incrível se pensarmos que em 39m² podemos ter uma habitação com camas confortáveis para 8 pessoas e mesa de refeição para 10! Aparentemente o espaço é bastante clean, pois as paredes escondem armários compartimentados de onde surge todo o mobiliário e equipamento para transformar o espaço em sala de estar, sala de jantar, cozinha e quarto. Uma das paredes é deslizante dividindo o espaço em 2 zonas: um quarto e uma sala.





Life edited apartment - 39m² (Nova Iorque, E.U.A. - 2013) / Graham Hill via architizer.com
Closet House - 44m² (Matosinhos, Portugal – 2010) / Consexto
A Closet House é composta por 5 zonas, 2 delas completamente flexíveis através de uma parede/armário móvel que se desloca e configura os espaços de zona de estar e quarto conforme as necessidades.
A rentabilização do espaço aliada à tecnologia foi a preocupação dominante de todo o projecto; a cozinha e a casa de banho possuem armários que se fundem e deslizam automaticamente das paredes. O controle de todo o equipamento electrónico, assim como da iluminação (natural e artificial) é integralmente realizado por um sistema de domótica aplicada, uma vez que garantir a eficiência energética foi outra das preocupações inerentes à obra.


Closet House - 44m² (Matosinhos, Portugal – 2010) / Consexto via consexto.com
Hong Kong Micro Apartment - 32m² (Hong Kong, China - 2012) / Gary Chang
Gary Chang fez várias transformações ao seu apartamento de 32m², onde vivia desde os 14 anos com a sua família, na tentativa de o tornar mais confortável apto às exigências do dia-a-dia.
Através de paredes deslizantes que comportam mobiliário, o espaço é facilmente transformado, contando com mais de 20 configurações diferentes.
O objectivo é optimizar o espaço, deixando espaço livre para poder ser adaptado às diferentes exigências funcionais.



Hong Kong Micro Apartment - 32m² (Hong Kong, China - 2012) / Gary Chang via homedsgn.com
